Přejít na obsahovou část stránky
01_Nahled-Digit

Popis domu Digit

Projekt luxusního patrového domu DIGIT zhmotňuje harmonii mezi moderní architekturou exteriéru a vysokou praktičností vnitřních prostor. Propojení chodby s obývacím pokojem (po jednoduché změně střední příčky za sloup), získáte ještě větší pocit vzdušnosti a prostornosti. Terasa na poschodí se dá ještě více zvětšit o plochu nad garáží. Dvoupodlažnost a kompaktnost objektu předurčuje tento dům k energeticky nenáročnému provozu. Do pozornosti bychom vám chtěli dát také projekt moderního patrového domu LOTUS.

 

 

Možnosti vybavení domu

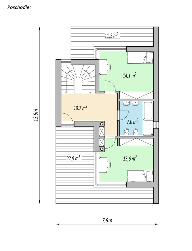
Půdorys a pohledy

ANCHOR_TOP_TITLE

Tento web využívá cookies

Pro chod webu jsou nezbytně aktivovány esenciální soubory cookies. Pro plnohodnotné poskytování služeb, personalizaci reklam a analýzu návštěvnosti jsou však nutné povolit i volitelné cookies. Kliknutím na následující tlačítko, je zapnete. Zobrazit podrobnosti

Nastavení cookies

Vaše soukromí je důležité. Můžete si vybrat z nastavení cookies níže. Zobrazit podrobnosti